Record Job Site Data
Using 360 Images
Our service is designed with every contractor, property owner and manager in mind.
Our unique approach to documentation allows your stakeholders—operations, finance, safety, owners, VDC, architects, trade partners, inspectors and investors—to gain remote access to your construction sites, and see all details of the current and historical progress in 360°.



Travel Less, Save More
Verify work, support change orders, mitigate risk, and prevent issues on-site wherever you are and save time and money on countless trips to the jobsite!
Accelerate Your Project’s Progress
Manage progress with 360° photos, organized by time and location, on your floor plans. Mark up photos, share instructions and close out comments in 360°!
Stay On Time and On Budget
Turn cumbersome construction photo documentation tasks into quick, easy and professional progress documentation workflows with an intuitive experience!
Gain Remote Site Access
Generate a 360° experience and view your jobsite anytime, anywhere. Never be without the construction documentation that you need!
Ensure That All Progress Is Recorded
Store all relevant documents and digital assets in an organized digital progress record, preparing you for any dispute
resolution—simply to be on the safe side!
Additional Services

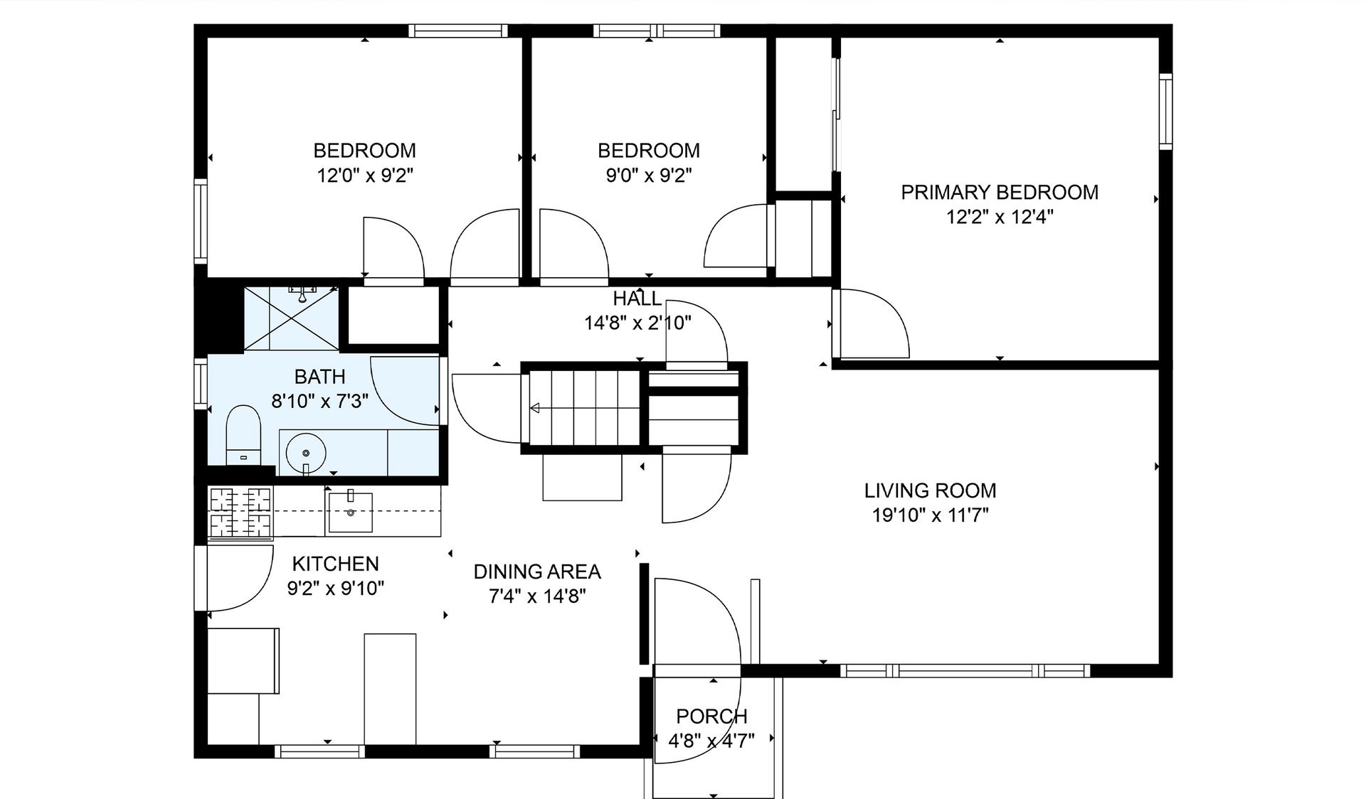
Floor & site Plans
Do you need floor plans or an illustrated site map of an existing property? Give us a call. We can help!
Floor plans included with
interior photo shoots
Inquire for more details.

Aerial Photo/video
Drone photos and media tell the story of your property better than ground media can. Call to schedule a flight!

Real Estate Photos
Have you recently finished a building project? Collecting project media of your builds is always a great choice!


